F.R.Z_8Z 시리즈 스위치 모듈 > F.R.Z_8Z 시리즈 스위치 모듈

본문 바로가기

쇼핑몰 검색

검색

HOME    >   제품정보   >   필터·레귤레이터   >   콤비네이션   >   장착 브래킷   >   F.R.Z_8Z 시리즈 스위치 모듈

F.R.Z_8Z 시리즈 스위치 모듈

F.R.Z_8Z 시리즈 스위치 모듈 요약정보 및 구매

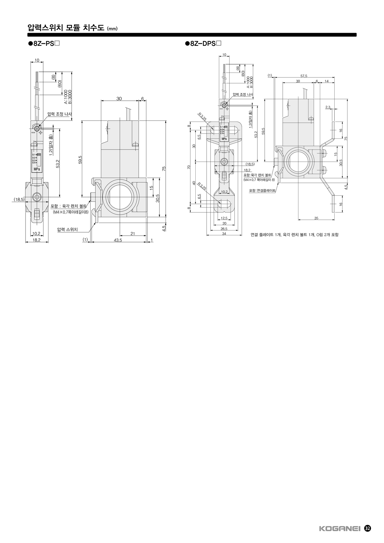
●FRZ · FRZB 시리즈용 압력 스위치 모듈입니다. 주의 : FRZ 시리즈 FRZ3_ 및 RZ3_에는 조립 할 수 없습니다

판매가격 0원
배송비결제 주문시 결제

상품의 재고가 부족하여 구매할 수 없습니다.

Copyright 2017 KOGANEI CORPORATION All rights reserved.